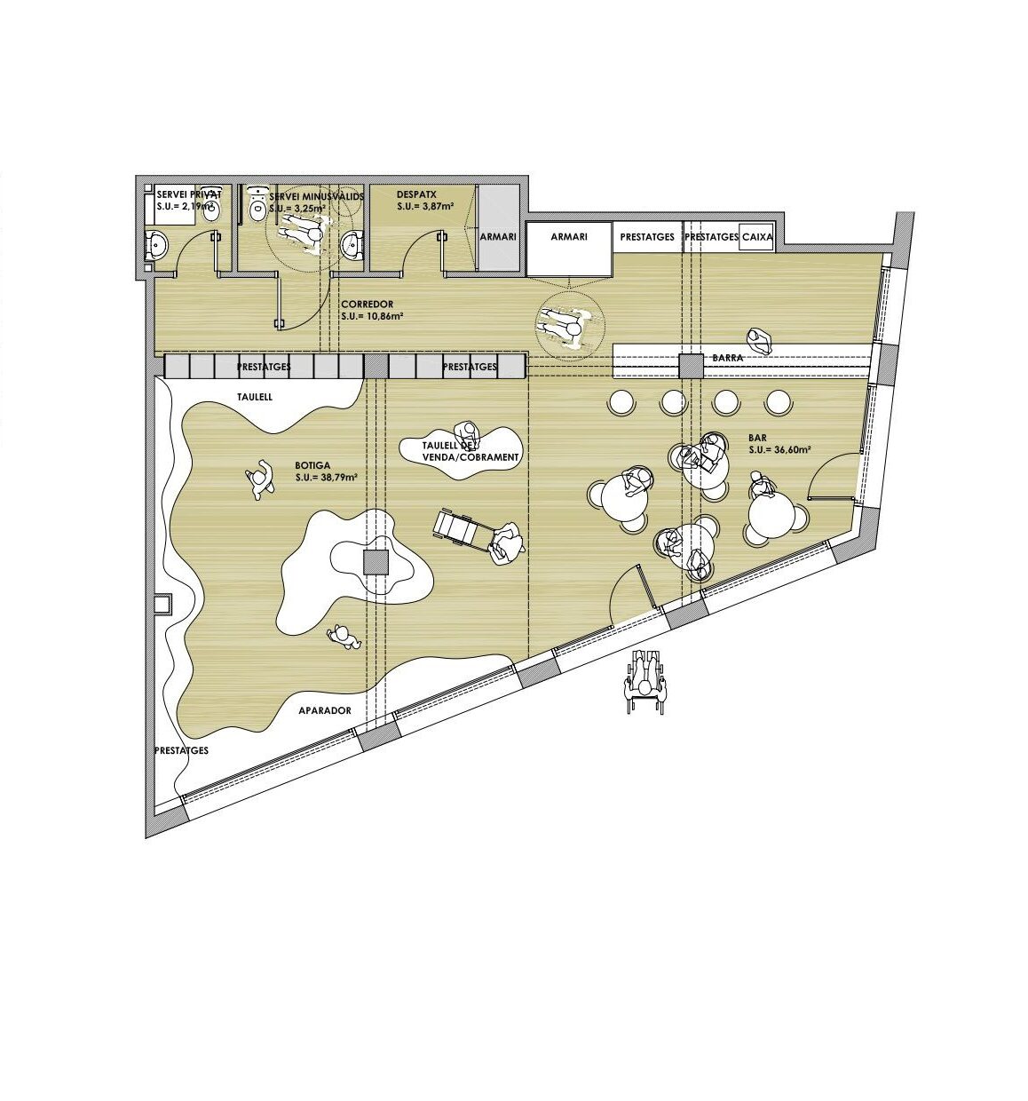
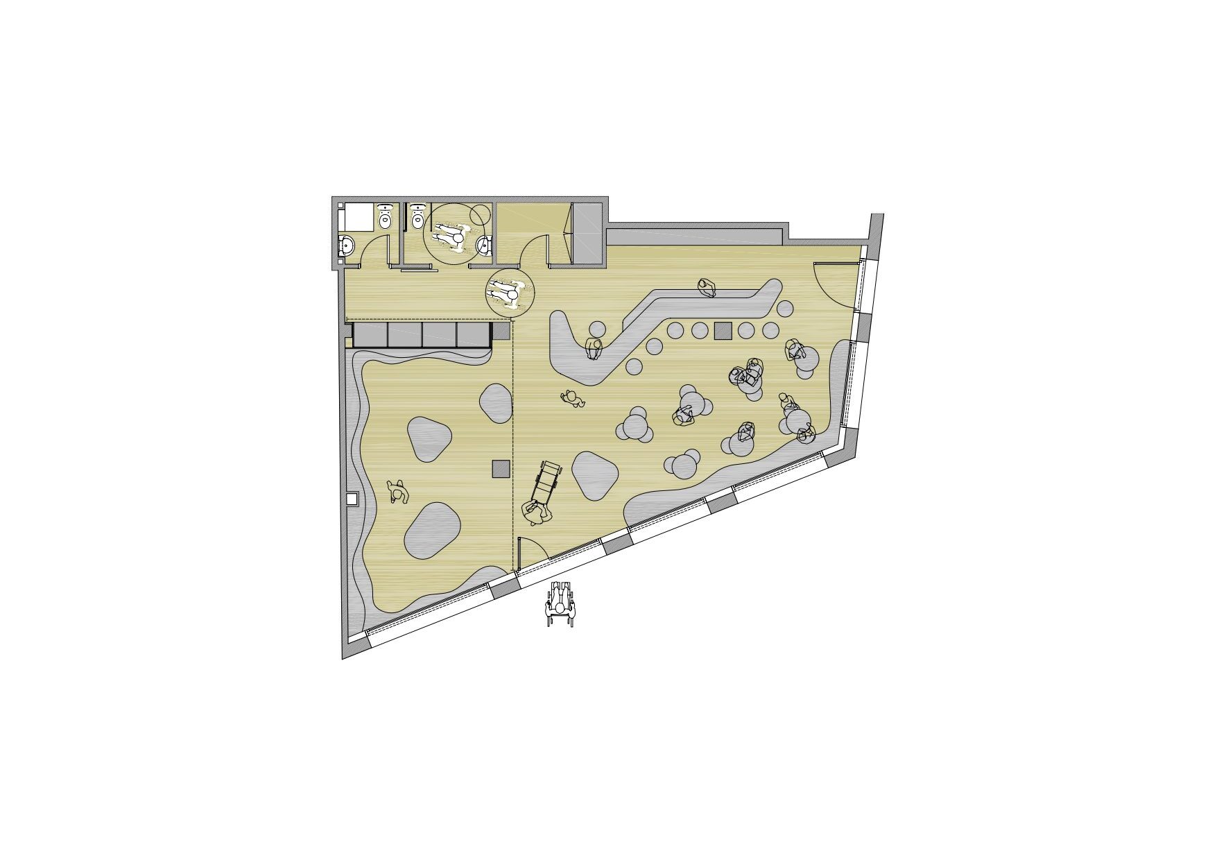
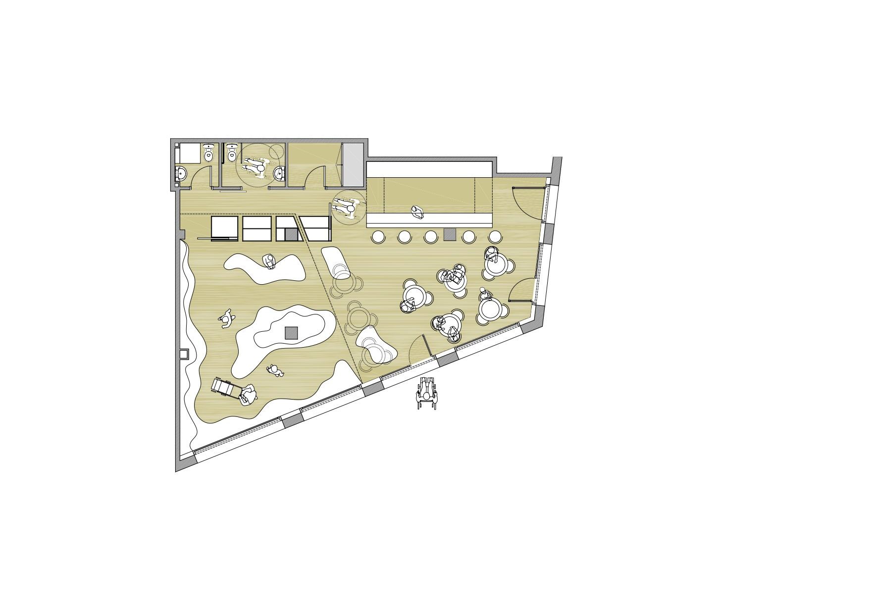
P4507
Projecte de redistribució de local per a obertura de botiga-bar a Sant Cugat del Vallès
Telèfon: 661 210 946
Email: estudi@cabreidiazarquitectes.cat
Santa Joaquima, 6 - 08172 Sant Cugat del Vallès (Barcelona)
Política de galetes
Política de privacitat