P0410
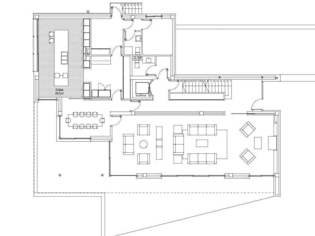
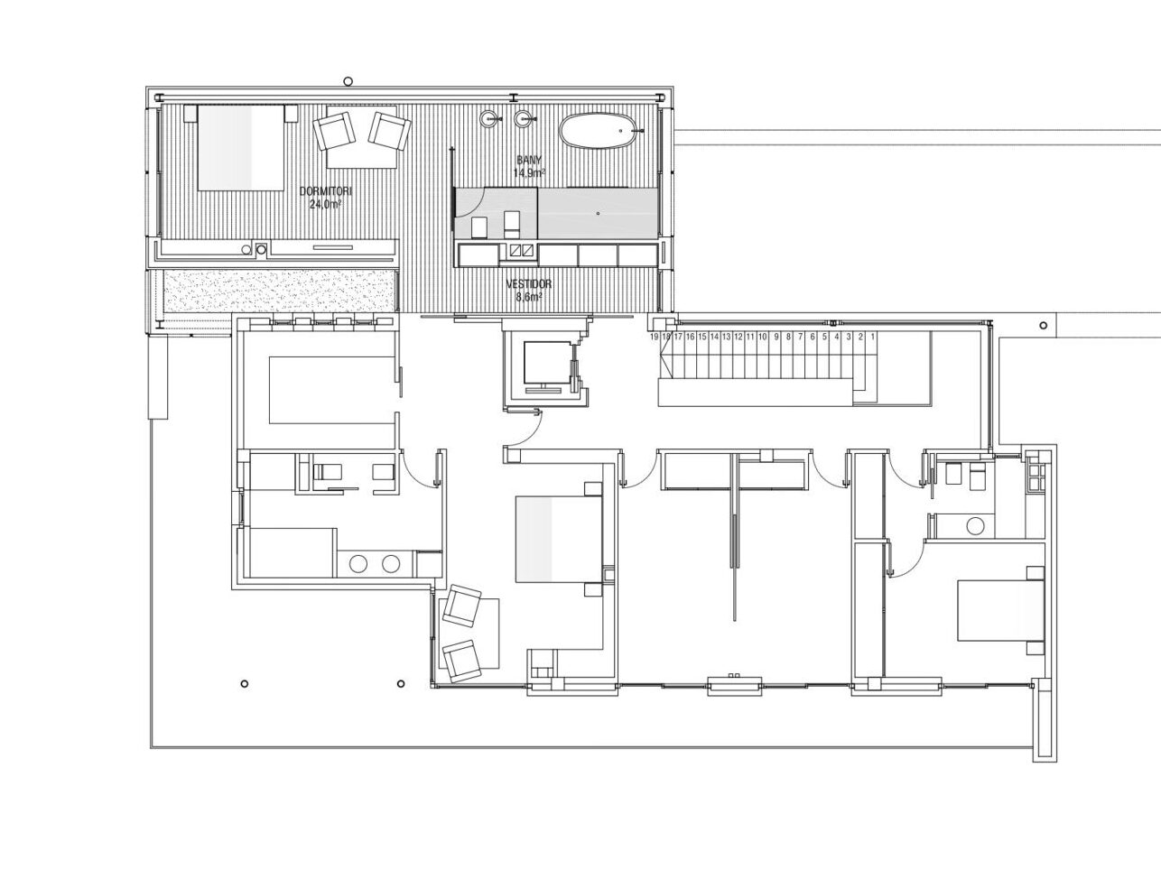
Ampliació d'habitatge unifamiliar aïllat a Sant Cugat del Vallès
Telèfon: 661 210 946
Email: estudi@cabreidiazarquitectes.cat
Santa Joaquima, 6 - 08172 Sant Cugat del Vallès (Barcelona)
Política de galetes
Política de privacitat